IN VENDITA

799.000 €

PUNTI CHIAVE:
  • 2 Camere
  • 3 Bagni
  • 180 m2
POSIZIONE:

Via NULLO 12, Bergamo

spettacolare opera d'arte in centro città: 180mq di design ed eleganza, con box e cantina
Descrizione

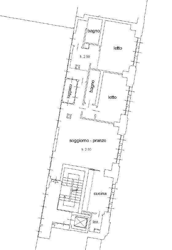
Bergamo centro, via Mazzini: all'interno di uno dei contesti piu belli e prestigiosi della citta bassa, proponiamo in vendita raffinato appartamento di 180 mq, configurato come trilocale con cucina abitabile, dispensa, doppi servizi e lavanderia, oltre ad un ampio balcone, una cantina e un box.

L'immobile, ultimato nel 2023, presenta ogni genere di confort:

Serramenti in Triplo vetro PVC, studiati appositamente per questo progetto;
Domotica di ultima generazione;
Impianto di deumidificazione e purificazione dell'aria;
Riscaldamento e Raffrescamento a pavimento;
Allarme;
Totale assenza di barriere architettoniche.
Vi e inoltre la possibilita di realizzare una 3' camera da letto con bagno en suite!

Il complesso all'interno del quale si trova questo gioiello, nacque nel 1911 su progetto dell'architetto Luigi Bergonzo e fu inizialmente destinato a ospitare sale macchine e trasformatori della neonata societa Enel.

Perso, tra gli anni '60 e '70, il suo scopo in ambito cittadino, nel 2016, viene svuotato e ricostruito, al suo interno, a scopi abitativi.

Il tutto cosi come concepito dall'architetto Antonio Citterio, autore del progetto e tra i piu prestigiosi rappresentanti del design italiano (le sue opere sono esposte dal Moma di New York al Georges Pompidou di Parigi, finanche in Giappone).

Il filo conduttore? Un'anima minimalista ed elegante, perfezionata dall'utilizzo di tecnologie all'avanguardia.

Seguendo il suo affermato stile, gli interni sono stati pensati per garantire ambienti luminosi e di respiro (grazie anche alle altezze e alle spettacolari vetrate in stile industrial Newyorkese) mentre per gli esterni, conservati e valorizzati, si sono volute studiare aree verdi con ecosistemi autorigeneranti.

Chiamaci subito e lasciati affascinare anche tu da questa vera e propria opera d'arte moderna!

ACCETTIAMO PERMUTE COME DENARO CONTANTE!

Devi anche vendere casa? Lo studio Ital Home Broseta ti assiste dalla A alla Z, inclusa la conformita urbanistica.
La tua casa, il nostro progetto!

Ital Home Broseta
Bergamo, Via Broseta n. 26
Telefono 035.04.00.280
E-Mail broseta@ital-home.it
Molte altre offerte sono disponibili sul nostro sito: www.brosetaital-home.it

Panoramica
  • Riferimento: T707
  • Camere: 2 Camere
  • Bagni: 3 Bagni
  • Box: Box Singolo
  • Superficie: 180 m2
  • Del: 2016
Video
Dettagli
ID Interno:
T707
Camere:
2
Prezzo:
€ 799.000
Bagni:
3
Superficie:
180 m2
Costruzione:
2016
Box:
Singolo
Tipo di Proprietà:
Appartamento
Piano:
2 di 3
Stato:
Ottimo
Riscaldamento:
Centralizzato con contabilizzatore di calore
Classe:
B
Caratteristiche
  • Ascensore
  • Giardino Comune
  • Box Singolo
  • Esposizione: Sud/Est
Ubicazione
(Ubicazione approsimativa)
Calcola il Mutuo
Rata Mensile: € 3'860,28
Il valore sopra riportato ha solo scopo indicativo ed è variabile in base al singolo Ente finanziatore ed al tasso indicato.
Contatta l'agenzia
avatar
Ital Home Broseta
035 04.00.280
broseta@ital-home.it
Perchè Scegliere Noi?
  • Acquisti in sicurezza
  • Miglior Prezzo Garantito
  • Consulenza personalizzata
  • Ascolto, dedizione, esperienza
Valuta la Tua Casa

Scopri il vero valore della tua casa o di quella che vuoi acquistare!

Inizia Valutazione
image
In base alla tua ricerca

Potrebbe interessarti

Appartamento a Bergamo
  • In Vendita
Appartamento

Bergamo

  • 3
  • 1
  • 107m2
avt
T727
€ 179.000
Appartamento a Bergamo
  • In Vendita
Appartamento

Bergamo

  • 5
  • 2
  • 200m2
avt
P536
€ 795.000
Appartamento a Bergamo
  • In Vendita
Appartamento

Bergamo

  • 2
  • 1
  • 68m2
avt
B534
€ 284.000