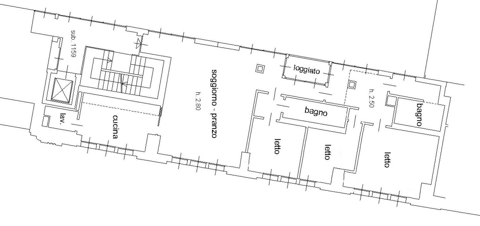
Bergamo centro, via Nullo: all'interno di uno dei contesti piu belli e prestigiosi della citta bassa, proponiamo in vendita raffinato appartamento di 180 mq, composto da: ingresso, salone con cucina a vista, doppi servizi e lavanderia, oltre ad un ampio balcone, una cantina e un box.
L'immobile, ultimato nel 2023, presenta ogni genere di confort:
Serramenti in Triplo vetro PVC, studiati appositamente per questo progetto;
Domotica di ultima generazione;
Impianto di deumidificazione e purificazione dell'aria;
Riscaldamento e Raffrescamento a pavimento;
Allarme;
Totale assenza di barriere architettoniche.
Il complesso all'interno del quale si trova questo gioiello, nacque nel 1911 su progetto dell'architetto Luigi Bergonzo e fu inizialmente destinato a ospitare sale macchine e trasformatori della neonata societa Enel.
Perso, tra gli anni '60 e '70, il suo scopo in ambito cittadino, nel 2016, viene svuotato e ricostruito, al suo interno, a scopi abitativi.
Il tutto cosi come concepito dall'architetto Antonio Citterio, autore del progetto e tra i piu prestigiosi rappresentanti del design italiano (le sue opere sono esposte dal Moma di New York al Georges Pompidou di Parigi, finanche in Giappone).
Il filo conduttore? Un'anima minimalista ed elegante, perfezionata dall'utilizzo di tecnologie all'avanguardia.
Seguendo il suo affermato stile, gli interni sono stati pensati per garantire ambienti luminosi e di respiro (grazie anche alle altezze e alle spettacolari vetrate in stile industrial Newyorkese) mentre per gli esterni, conservati e valorizzati, si sono volute studiare aree verdi con ecosistemi autorigeneranti.
Chiamaci subito e lasciati affascinare anche tu da questa vera e propria opera d'arte moderna!
Cod. Q433
Devi anche vendere casa? Lo studio Ital Home Broseta ti assiste dalla A alla Z, inclusa la conformita urbanistica.
La tua casa, il nostro progetto!
Ital Home Broseta
Bergamo, Via Broseta n. 26
Telefono 035.04.00.280
E-Mail broseta@ital-home.it
Molte altre offerte sono disponibili sul nostro sito: www.brosetaital-home.it
Bergamo
Bergamo
Bergamo