Bergamo centro città: alle spalle di Piazza S. Anna nasce un nuovo intervento residenziale di soli 15 appartamenti, 2 negozi, 7 posti auto privati e 22 autorimesse tra singole e doppie.
La nuova "RESIDENZA VIA PIATTI 12" è in corso di costruzione e la consegna è prevista per la fine di quest'anno (2025).
L'intervento si contraddistingue per le sue meravigliose terrazze, vivibili e molto spaziose, alcune anche attrezzate, e per le finiture moderne e di classe, con design innovativo.
I materiali scelti sono di grande pregio e vi è ampia scelta di capitolato.
Le tecnologie all'avanguardia realizzate consentiranno di ottenere un elevato comfort abitativo abbinato ad un bassissimo consumo energetico (riscaldamento e raffrescamento a pavimento, impianto di VMC con recupero di calore, impianto fotovoltaico condominiale, colonnina per ricarica auto elettriche nei box, cappotto esterno, etc).
L'ultimo piano, raggiungibile con ascensore privato, si compone di 2 meravigliosi attici con delle terrazze a dir poco incantevoli.
Classe energetica A4.
Possibilità di arredi personalizzati con mobilificio convenzionato.
Disponibilità:
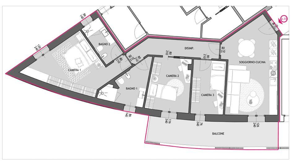
-Appartamento A03-1: grande quadrilocale di 112 mq con 19 mq di terrazza, composto da: ingresso, ampia zona giorno con cucina a vista, spazioso soggiorno, disimpegno notte, doppi servizi entrambi finestrati, 3 camere da letto e la meravigliosa, panoramica terrazza di 19mq.
Per appuntamenti: MARTEDI e GIOVEDI dalle 10:00 alle 15:00 - IL SABATO dalle 10:00 alle 14:00, previa prenotazione chiamando il n. 035.04.00.280
ACCETTIAMO PERMUTE!
Chiamaci subito e fissa con noi una visita prima che sia troppo tardi!
Cod. T716
Devi anche vendere casa? Lo studio Ital Home Broseta ti assiste dalla A alla Z, inclusa la conformità urbanistica.
La tua casa, il nostro progetto!
Ital Home Broseta
Bergamo, Via Broseta n. 26
Telefono 035.04.00.280
E-Mail broseta@ital-home.it
Molte altre offerte sono disponibili sul nostro sito: www.brosetaital-home.it
Il presente materiale ha scopo illustrativo e non costituisce vincolo contrattuale.
Bergamo
Bergamo
Bergamo