IN VENDITA

350.000 €

PUNTI CHIAVE:
  • 3 Camere
  • 2 Bagni
  • 112 m2
POSIZIONE:

Via Piatti , Bergamo

la meravigliosa "residenza piatti 12", in c.e. a4 - grande quadrilocale con doppi servizi finestrati e 19mq di terrazza
Descrizione

Bergamo centro città: alle spalle di Piazza S. Anna nasce un nuovo intervento residenziale di soli 15 appartamenti, 2 negozi, 7 posti auto privati e 22 autorimesse tra singole e doppie.
La nuova "RESIDENZA VIA PIATTI 12" è in corso di costruzione e la consegna è prevista per la fine di quest'anno (2025).
L'intervento si contraddistingue per le sue meravigliose terrazze, vivibili e molto spaziose, alcune anche attrezzate, e per le finiture moderne e di classe, con design innovativo.
I materiali scelti sono di grande pregio e vi è ampia scelta di capitolato.
Le tecnologie all'avanguardia realizzate consentiranno di ottenere un elevato comfort abitativo abbinato ad un bassissimo consumo energetico (riscaldamento e raffrescamento a pavimento, impianto di VMC con recupero di calore, impianto fotovoltaico condominiale, colonnina per ricarica auto elettriche nei box, cappotto esterno, etc).
L'ultimo piano, raggiungibile con ascensore privato, si compone di 2 meravigliosi attici con delle terrazze a dir poco incantevoli.
Classe energetica A4.
Possibilità di arredi personalizzati con mobilificio convenzionato.

Disponibilità:
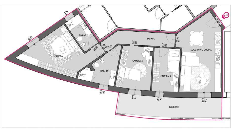
-Appartamento A03-1: grande quadrilocale di 112 mq con 19 mq di terrazza, composto da: ingresso, ampia zona giorno con cucina a vista, spazioso soggiorno, disimpegno notte, doppi servizi entrambi finestrati, 3 camere da letto e la meravigliosa, panoramica terrazza di 19mq.

Per appuntamenti: MARTEDI e GIOVEDI dalle 10:00 alle 15:00 - IL SABATO dalle 10:00 alle 14:00, previa prenotazione chiamando il n. 035.04.00.280
ACCETTIAMO PERMUTE!

Chiamaci subito e fissa con noi una visita prima che sia troppo tardi!
Cod. T716

Devi anche vendere casa? Lo studio Ital Home Broseta ti assiste dalla A alla Z, inclusa la conformità urbanistica.
La tua casa, il nostro progetto!

Ital Home Broseta
Bergamo, Via Broseta n. 26
Telefono 035.04.00.280
E-Mail broseta@ital-home.it
Molte altre offerte sono disponibili sul nostro sito: www.brosetaital-home.it

Il presente materiale ha scopo illustrativo e non costituisce vincolo contrattuale.

Panoramica
  • Riferimento: A03-1
  • Camere: 3 Camere
  • Bagni: 2 Bagni
  • Superficie: 112 m2
  • Del: 2025
Video
Dettagli
ID Interno:
A03-1
Camere:
3
Prezzo:
€ 350.000
Bagni:
2
Superficie:
112 m2
Costruzione:
2025
Tipo di Proprietà:
Appartamento
Piano:
1 di 4
Stato:
Ottimo
Riscaldamento:
Autonomo
Classe:
A4
Caratteristiche
  • Ascensore
  • Esposizione: E/S/O
Ubicazione
(Ubicazione approsimativa)
Calcola il Mutuo
Rata Mensile: € 1'690,99
Il valore sopra riportato ha solo scopo indicativo ed è variabile in base al singolo Ente finanziatore ed al tasso indicato.
Contatta l'agenzia
avatar
Ital Home Broseta
035 04.00.280
broseta@ital-home.it
Perchè Scegliere Noi?
  • Acquisti in sicurezza
  • Miglior Prezzo Garantito
  • Consulenza personalizzata
  • Ascolto, dedizione, esperienza
Valuta la Tua Casa

Scopri il vero valore della tua casa o di quella che vuoi acquistare!

Inizia Valutazione
image
In base alla tua ricerca

Potrebbe interessarti

Appartamento a Bergamo
  • In Vendita
Appartamento

Bergamo

  • 4
  • 1
  • 180m2
avt
COM172
€ 465.000
Locale commerciale a Bergamo
  • In Vendita
Locale commerciale

Bergamo

  • 5
  • 2
  • 141m2
avt
COM169
€ 250.000
Appartamento a Bergamo
  • In Vendita
Appartamento

Bergamo

  • 3
  • 1
  • 88m2
avt
T733
€ 169.000