PRONTO PER L'ESTATE!
Bergamo, quartiere Carducci, all'interno di un complesso elegante e ben tenuto, con tetto e facciate già in ordine, servito d'ascensore e portineria, già collegato al teleriscaldamento, proponiamo in vendita ampio appartamento trilocale NUOVO, tutto esposto Sud/Est e completo di doppia balconata, cantina e posto auto assegnato.
L'immobile, totalmente ristrutturato, presenta portoncino blindato, serramenti in pvc tripli vetri, tapparelle elettriche con cassoni coibentati, pavimenti in gres porcellanato, allarme e aria condizionata.
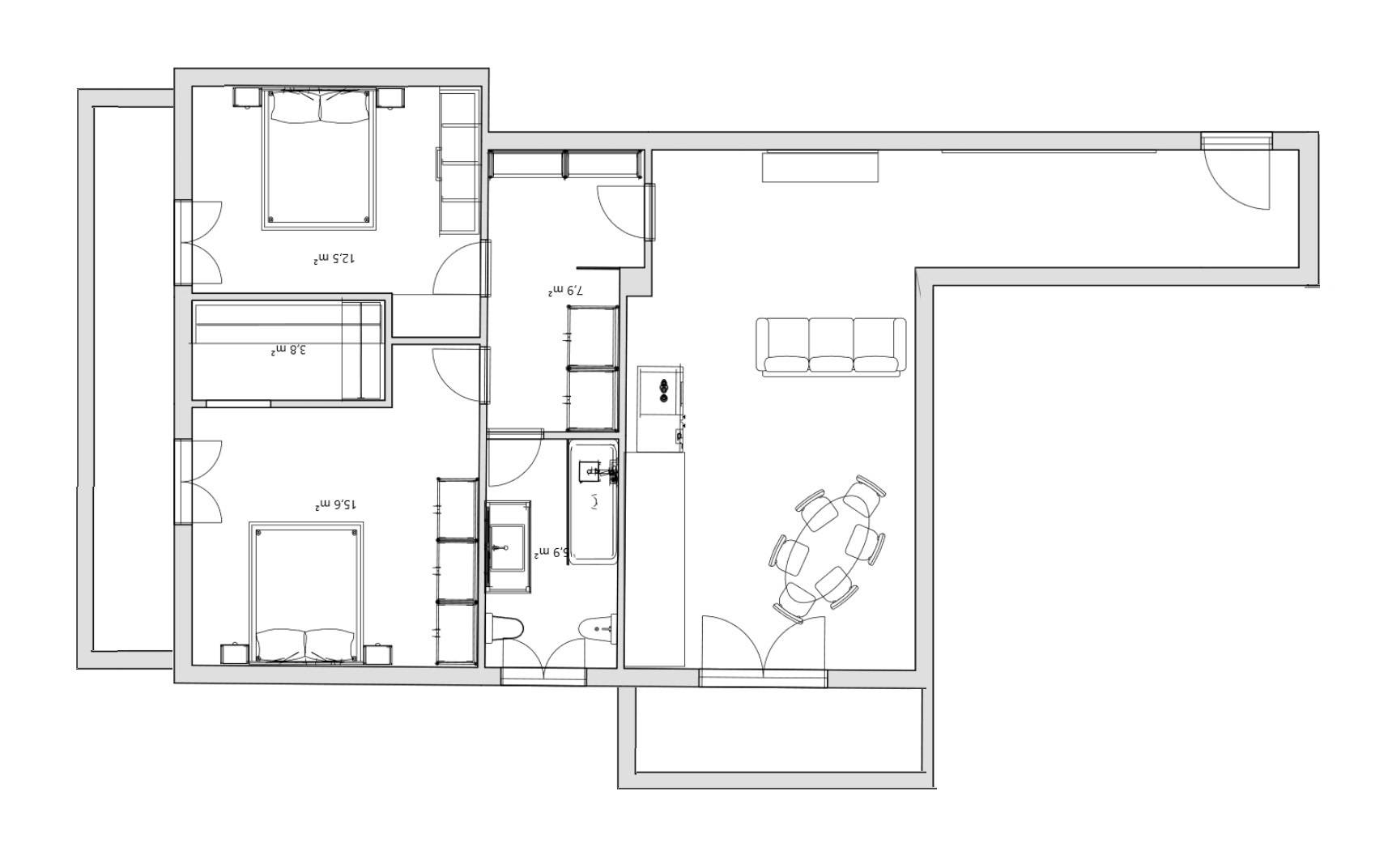
Internamente si compone di: ingresso, soggiorno con cucina a vista a induzione, disimpegno notte, due camere da letto matrimoniali, una delle quali con cabina armadio e un ampio servizio finestrato.
A completare l'offerta, due spaziose e soleggiate balconate su cui si affaccia ogni ambiente della casa (bagno escluso).
Per chi lo desiderasse, vi è anche la possibilità di ricavare un secondo servizio all'interno della cabina armadio, realizzandone uno en suite.
E' una casa perfetta tanto come abitazione principale che come proficuo investimento; la posizione è strategica, a metà strada tra il centro città e l'Università Degli Studi di Bergamo, comodo anche per raggiungere agilmente l'autostrada e l'aeroporto e con ogni genere di servizio praticamente sotto casa.
Possibilità di scelta delle finiture e di personalizzazione interna.
Chiamaci subito e prenota con noi una vista per vederlo di persona.
Cod. T732
Il presente materiale ha scopo illustrativo e non costituisce vincolo contrattuale
Devi anche vendere casa? Lo studio Ital Home Broseta ti assiste dalla A alla Z, inclusa la conformità urbanistica!
La tua casa, il nostro progetto!
Ital Home Broseta
Bergamo, Via Broseta n. 26
Telefono 035.04.00.280
E-Mail broseta@ital-home.it
Molte altre offerte sono disponibili sul nostro sito: www.brosetaital-home.it
Bergamo
Bergamo
Bergamo