IN VENDITA

250.000 €

PUNTI CHIAVE:
  • 2 Bagni
  • 141 m2
POSIZIONE:

Via Broseta 87, Bergamo

locale commerciale in vendita a bergamo
Descrizione

PREZZO RIBASSATO!
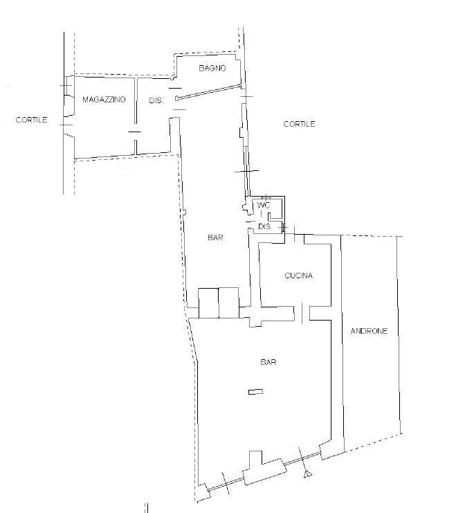
Bergamo, quartiere San Paolo, direttamente su Via Broseta, zona di forte passaggio sia pedonale che automobilistico, vicino alla fermata del pullman e con numerosi parcheggi nelle immediate vicinanze, proponiamo in vendita grande locale commerciale senza barriere architettoniche, ristrutturato nel 2014, con 2 vetrine fronte strada, 2 servizi, di cui uno a norma per disabili, una cucina con 2 canne fumarie e un magazzino con comodo accesso dal cortile interno.
Previa autorizzazione del comune (già concessa al precedente inquilino) vi è inoltre la possibilità di usufruire dello spazio esterno, fronte strada, per il servizio ai tavoli.
Gli impianti di riscaldamento e raffrescamento sono termoautonomi e le spese condominiali ammontano a meno di 80€ al mese.
La soluzione, senza riammodernamenti, si presta perfettamente a conservare l'attività di bar e ristorazione e, considerate le sue ampie dimensioni e la posizione in vista, potrebbe trasformarsi, senza dispendio economico, in un negozio o in un ufficio.
Già libero e disponibile sin da subito!

Chiamaci subito e prenota con noi una visita di persona.
Cod. COM169

Devi anche vendere casa? Lo studio Ital Home Broseta ti assiste dalla A alla Z, inclusa la conformità urbanistica.
La tua casa, il nostro progetto!

Ital Home Broseta
Bergamo, Via Broseta n. 26
Telefono 035.04.00.280
E-Mail broseta@ital-home.it
Molte altre offerte sono disponibili sul nostro sito: www.brosetaital-home.it

Panoramica
  • Riferimento: COM169
  • Camere: 0 Camere
  • Bagni: 2 Bagni
  • Superficie: 141 m2
Dettagli
ID Interno:
COM169
Prezzo:
€ 250.000
Bagni:
2
Superficie:
141 m2
Tipo di Proprietà:
Locale commerciale
Piano:
Piano terra di 3
Riscaldamento:
Assente
Classe:
F
Ubicazione
(Ubicazione approsimativa)
Calcola il Mutuo
Rata Mensile: € 1'207,85
Il valore sopra riportato ha solo scopo indicativo ed è variabile in base al singolo Ente finanziatore ed al tasso indicato.
Contatta l'agenzia
avatar
Ital Home Broseta
035 04.00.280
broseta@ital-home.it
Perchè Scegliere Noi?
  • Acquisti in sicurezza
  • Miglior Prezzo Garantito
  • Consulenza personalizzata
  • Ascolto, dedizione, esperienza
Valuta la Tua Casa

Scopri il vero valore della tua casa o di quella che vuoi acquistare!

Inizia Valutazione
image
In base alla tua ricerca

Potrebbe interessarti

Appartamento a Bergamo
  • In Vendita
Appartamento

Bergamo

  • 3
  • 2
  • 142m2
avt
T731-XX
€ 790.000
Appartamento a Bergamo
  • In Vendita
Appartamento

Bergamo

  • 4
  • 1
  • 180m2
avt
Q465
€ 465.000
Locale commerciale a Bergamo
  • In Vendita
Locale commerciale

Bergamo

  • 5
  • 2
  • 141m2
avt
COM169
€ 250.000